The 1366 Marquette

3 Bed 2 Bath 1366 sq ft

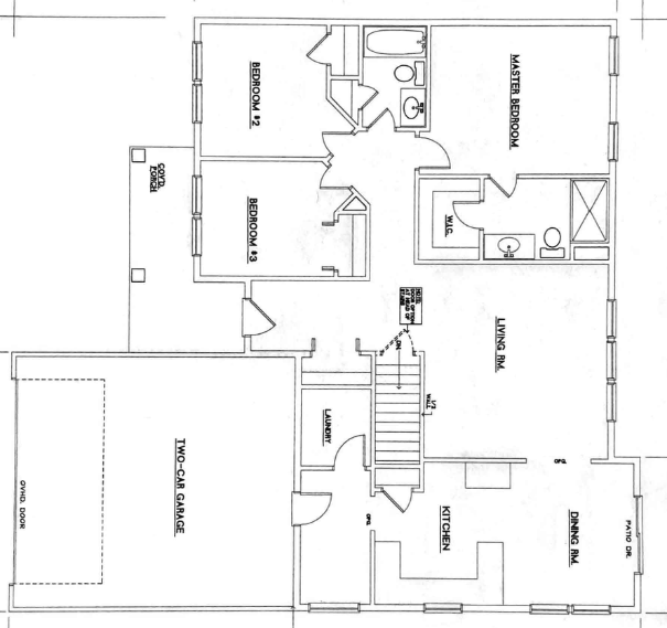
The Marquette by Oak Ridge Homes is the ideal ranch home for those seeking style, efficiency, and customization options. This home features a spacious kitchen with plenty of counter space, storage, and a breakfast bar, creating the perfect space for cooking, dining, and entertaining.

The open layout seamlessly connects the kitchen, dining area, and living room, offering a spacious and inviting feel. The office space is perfect for work or personal use, while the laundry/mudroom adds convenience and practicality.

With 3 bedrooms, including a private primary suite with a walk-in closet and en-suite bath, The Marquette offers comfort and privacy. The full basement provides ample room for future expansion, whether you are looking to add a rec room, extra bedrooms, or storage space.

For blueprints, customization options, and pricing, please send us an email!

EMAIL US
Previous
Previous

1200 Wilson

Next
Next

1428 Hamilton